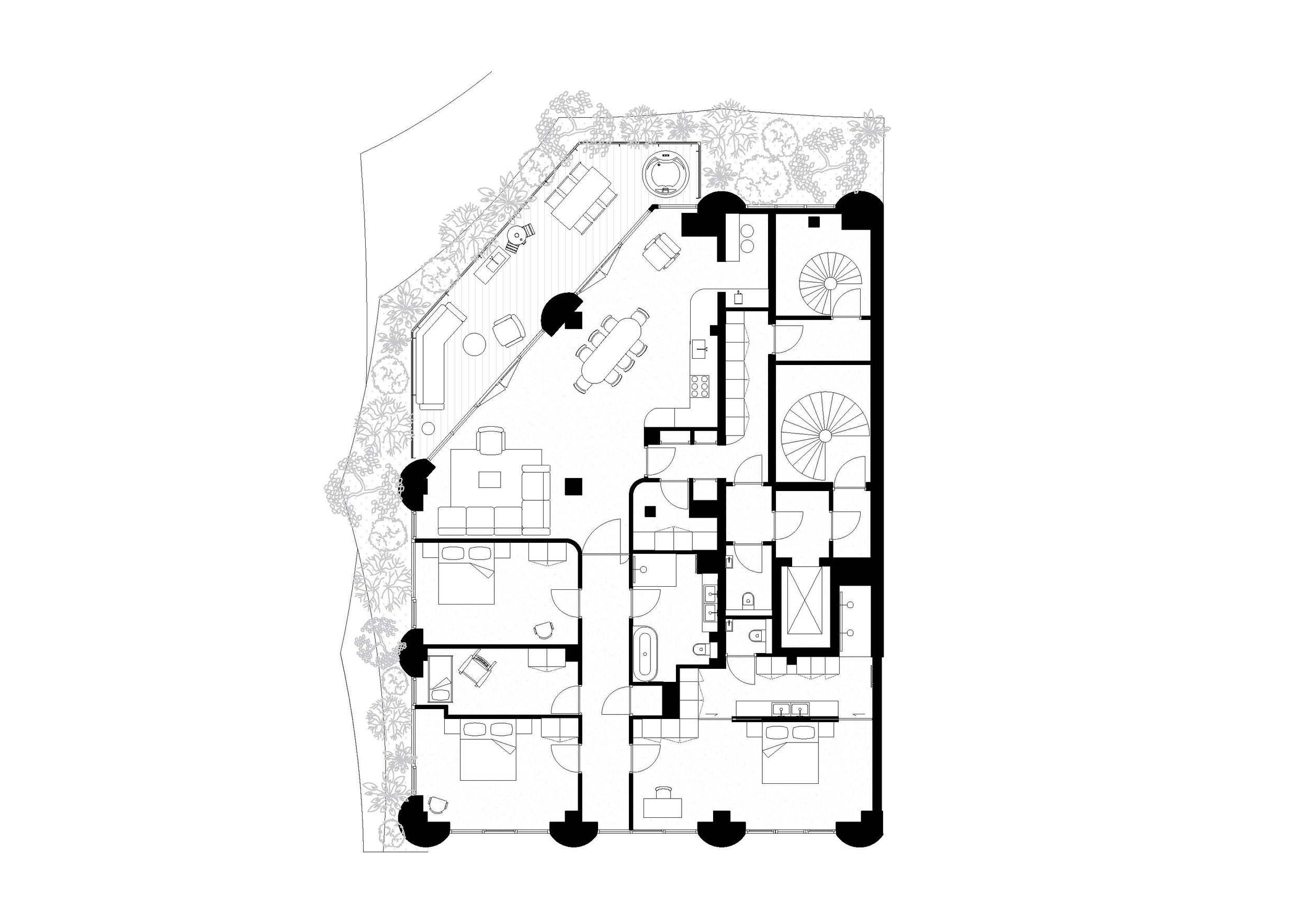
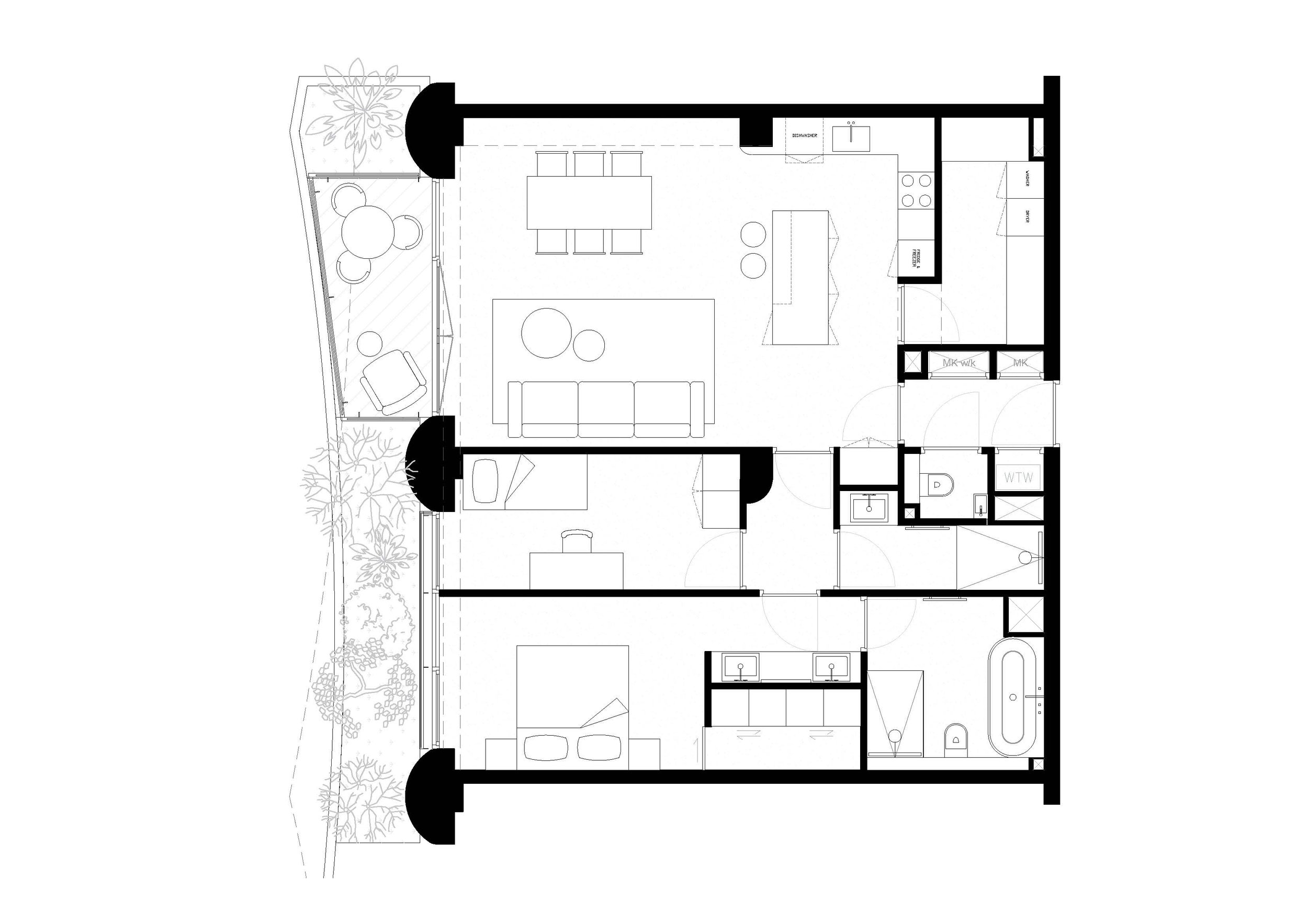
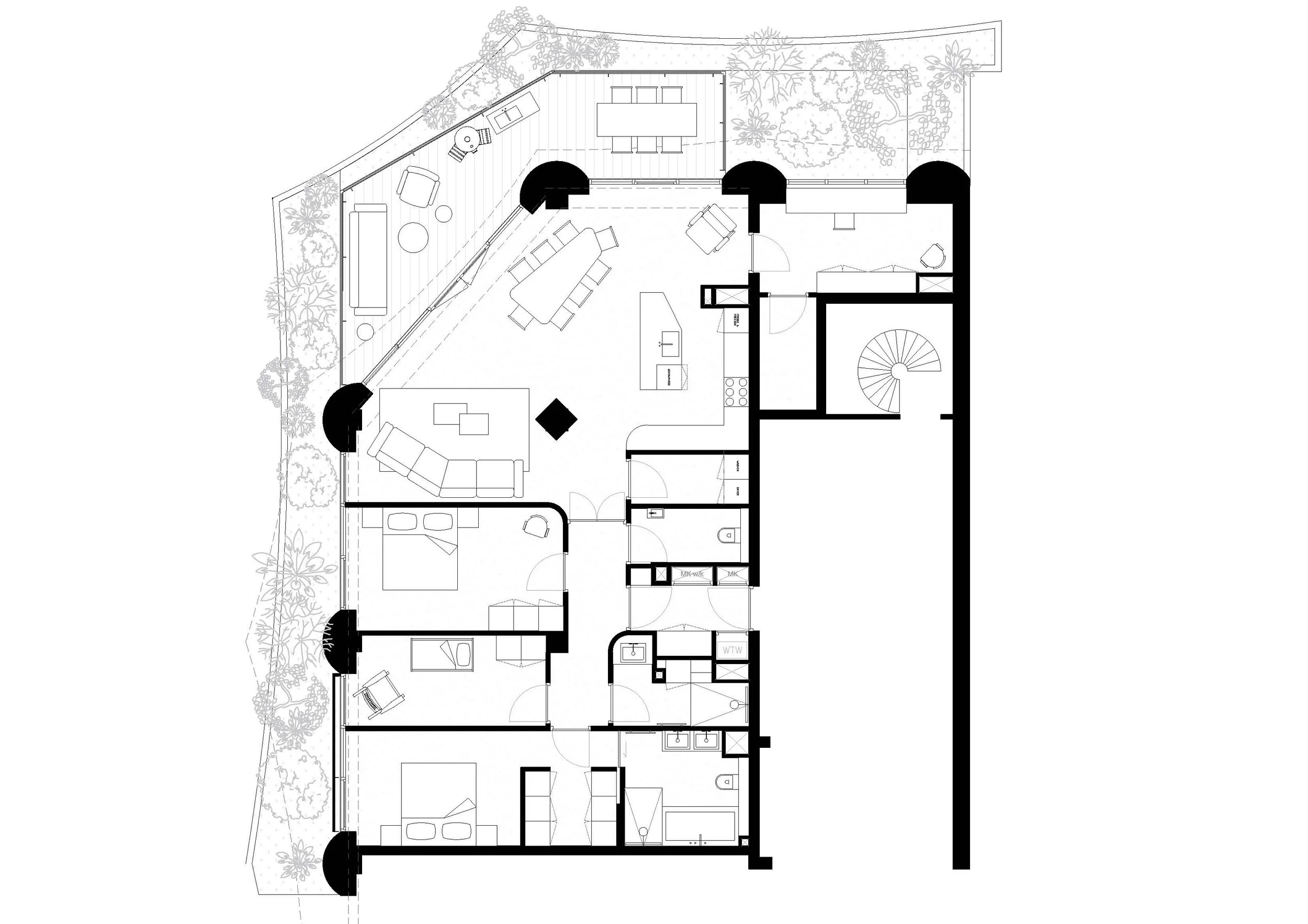
At Gustav Mahlerlaan in Amsterdam’s Zuidas rises Ceci: a distinctive residential building of 3,500 m², where Studio Modijefsky shaped the interior concept in collaboration with Space Encounters and Being. The interiors of 24 apartments consist of detailed floor plans and spatial layouts, ensuring that each residence is unique in its proportions, flow, and atmosphere.
Situated between the city and the waterfront of the Jaddanbaikade, Ceci forms part of the Kenniskwartier, a new district where living, working, and learning intersect. In this predominantly business-oriented environment, Ceci introduces a layered residential experience that blends boutique living with subtle nods to hospitality, art, and culture.
Ceci is conceived as an architectural translation of Magical Realism, a place where imagination merges with refinement and the rational meets the poetic. Landscape, architecture, and interior design come together in a single narrative, where inside and outside flow seamlessly into each other. Enveloped by expressive architecture by Space Encounters and lush landscaping by MOSS, Ceci offers a refined sense of wonder to urban life and creates a home that is as inspiring as it is timeless.
All residences, ranging from 70 to 200 m², are unique in layout and atmosphere. Light, greenery, and materiality are carefully orchestrated, with large triple-glazed floor-to-ceiling windows framing ever-changing views of the surroundings. The spatial compositions, developed by Studio Modijefsky, introduce a sense of ease, allowing each apartment to feel personal, tactile, and one of a kind.
Building on the architectural and spatial framework, Studio Modijefsky developed an initial interior vision that translates these layouts into a rich spatial experience through form, volume, colour, light, material, and texture. It expresses how the apartments can evolve into layered, atmospheric interiors.
The Ceci colour and material palette forms a refined library for future interiors. A delicate balance is sought between colours across different materials and finishes, ranging from highly polished surfaces to almost touchable, soft textures. The palette is expressive yet warm, adding tactility and depth to the building’s identity. Lavender blue is paired with deep red tones; soft butter yellow is complemented by light walnut wood finishes; and glossy dark green finds its counterpart in warm, terracotta-toned travertine.
Future residents can build on this foundation through a tailor-made interior. For those who wish, Studio Modijefsky can offer tailormade interior plans, from curated finishes to fully bespoke interiors, in sync with the building’s DNA. High-end, fully bespoke interior design that blends art, architecture, and luxury materials into unique spaces with a distinct identity.
